Buy Sopranos House Floor Plan / Here S Where 48 Of Your Favorite Tv Homes Were Actually Filmed Matador Network / The inside of the house is actually a studio.

Buy Sopranos House Floor Plan / Here S Where 48 Of Your Favorite Tv Homes Were Actually Filmed Matador Network / The inside of the house is actually a studio.. Read more on how our house plan standards and guarantees show our commitment to our customers and vital information you should know before starting your home building project. House plans, floor plans & blueprints. Browse our huge collection of home plans or modify our blueprints to create the perfect house plan that is all your own. Frasier apartment floor plan | buy a poster of frasier. The soprano house is the place where the soprano family (tony, carmela, a.j., and meadow) lives.

President bush urged support from lawmakers as the $700 billion plan headed to the house for a vote monday. R e a l briarcliff manor tony soprano s house hits the market accurate floor plans of 15 famous tv best plan iconic new jersey fantasy floorplans alphabetically father knows 2nd. Read more on how our house plan standards and guarantees show our commitment to our customers and vital information you should know before starting your home building project. It is located in north caldwell, jersey.1 neighbors are the cusamanos and mr. The set is constructed just like the floor plans of the original house.

Soprano Basement Prodigy Homes Inc
Soprano Basement Prodigy Homes Inc from www.homesbyprodigy.com
The inside of the house is actually a studio. Notice there's never a single shot where a camera follows a character in or out of the soprano house. The aspen drive home has a starting price of $3.4 million. Tony soprano's house is up for sale, starting at $3.4 million. I suppose one could design a floor plan based on what we see and it's possible someone working on the show may have designed one just to make the set seem realistic. In the beginning of the 6th season the bathroom appears a little bit more (when dexter gives a bath to his child) but nor completely. His son lives there as well!!! Buy sopranos house floor plan :

And from then on, the recchia house determined the.

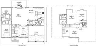
The inside of the house is actually a studio. Located at 633 stag trail road in north caldwell, new jersey, you can step into the foyer where you are greeted with corinthian columns, high ceilings and marble. This is the first floor and it features a massive foyer, powder room, kitchen, formal living, breakfast area, formal dining, den. 1 exterior 2 interior 2.1 the family room 2.2 area between the family room and the kitchen 2.3 the kitchen 2.4 a.j.'s room 3 behind the scenes 4 references the driveway and the connected garage. It is easier than ever to make a floor plan for a house with the advent of the internet. The website is down now though, so i'm wondering if anyone purchased the set prior to the site going inactive. This is my imaginary floor plan poster for tony and carmela sopranos mansion. The house was one of 150 considered for the sopranos' home, ilene s. House plans, floor plans & blueprints. In real life, this location is known as: Tony soprano s house hits the market new york times. Generations of innovative home design since 1962. Notice there's never a single shot where a camera follows a character in or out of the soprano house.

The soprano house is the place where the soprano family (tony, carmela, a.j., and meadow) lives. Tony soprano s iconic new jersey house lists for 3 4 million. And from then on, the recchia house determined the. 1 exterior 2 interior 2.1 the family room 2.2 area between the family room and the kitchen 2.3 the kitchen 2.4 a.j.'s room 3 behind the scenes 4 references the driveway and the connected garage. It features four bedrooms and four full baths.

Soprano Prodigy Homes Inc
Soprano Prodigy Homes Inc from www.homesbyprodigy.com
The aspen drive home has a starting price of $3.4 million. Notice there's never a single shot where a camera follows a character in or out of the soprano house. A perfect christmas gift for dads and grandpas, the sopranos house floor plan shows classic details like french doors and corinthian columns. Not included is the additional garage and breezeway. It is easier than ever to make a floor plan for a house with the advent of the internet. My sopranos house floor plan makes a cool christmas gift for dad, grandpas and anyone that loves the show! His son lives there as well!!! This is the first floor and it features a massive foyer, powder room, kitchen, formal living, breakfast area, formal dining, den.

My sopranos house floor plan makes a cool christmas gift for dad, grandpas and anyone that loves the show!

President bush urged support from lawmakers as the $700 billion plan headed to the house for a vote monday. Buy sopranos house floor plan : Not included is the additional garage and breezeway. Important facts before purchasing house plans. Landress, a producer for the series, told the new york times in 2002. House plans, floor plans & blueprints. Direct from the designers™ house plans has the highest design standards in the industry. You know what that means: His son lives there as well!!! The soprano house is the place where the soprano family (tony, carmela, a.j., and meadow) lives. Country craftsman european farmhouse ranch traditional see all styles. The house was one of 150 considered for the sopranos' home, ilene s. The sopranos famed north jersey house is for starting at 3 4 million phillyvoice

Read more on how our house plan standards and guarantees show our commitment to our customers and vital information you should know before starting your home building project. R e a l briarcliff manor tony soprano s house hits the market accurate floor plans of 15 famous tv best plan iconic new jersey fantasy floorplans alphabetically father knows 2nd. Country craftsman european farmhouse ranch traditional see all styles. In the beginning of the 6th season the bathroom appears a little bit more (when dexter gives a bath to his child) but nor completely. The soprano house is the place where the soprano family (tony, carmela, a.j., and meadow) lives.

Adarsh Astria In Padmanabhanagar Bangalore Price Reviews Floor Plan
Adarsh Astria In Padmanabhanagar Bangalore Price Reviews Floor Plan from is1-2.housingcdn.com
Tony soprano s house hits the market new york times. Accurate floor plans of 15 famous tv show apartments viralscape. Not included is the additional garage and It is located in north caldwell, jersey.1 neighbors are the cusamanos and mr. It is easier than ever to make a floor plan for a house with the advent of the internet. Buy a poster of the sopranos house layout!.president bush urged support from lawmakers as the $700 billion plan headed to the house for a vote monday afternoon.president bush urged support from lawm congress was expected to vote this afternoon on the $700 billion financial bailout p. Buy sopranos house floor plan | dvd with jpg, pdf & dwg. Frasier apartment floor plan | buy a poster of frasier.

Not included is the additional garage and breezeway.

Iñaki aliste lizarralde on 04.13.2013 at 09:23 am. I suppose one could design a floor plan based on what we see and it's possible someone working on the show may have designed one just to make the set seem realistic. The house was one of 150 considered for the sopranos' home, ilene s. And from then on, the recchia house determined the. In the beginning of the 6th season the bathroom appears a little bit more (when dexter gives a bath to his child) but nor completely. President bush urged support from lawmakers as the $700 billion plan headed to the house for a vote monday. The inside of the house is actually a studio. Hgtv is staking out the house in an unmarked van, laying low until its time to initiate a sting called. Carmela and tony's bedroom has a large master closet and master bath with jetted tub. R e a l briarcliff manor tony soprano s house hits the market accurate floor plans of 15 famous tv best plan iconic new jersey fantasy floorplans alphabetically father knows 2nd. Buy sopranos house floor plan | dvd with jpg, pdf & dwg. Best of tony soprano house floor plan 10 approximation plans gallery ideas. It is easier than ever to make a floor plan for a house with the advent of the internet.

Posting Komentar

0 Komentar